forside
projektet
Området
boligerne
download
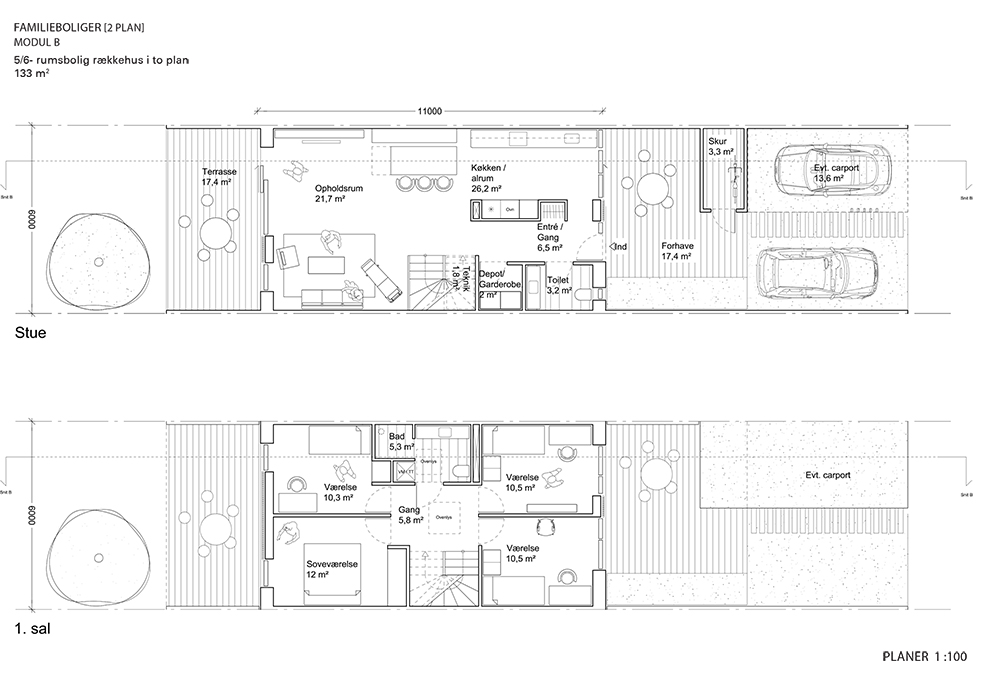
Boligen
Krekærtoften 3B
Status:
Ledig
Husstørrelse:
133
Grundstørrelse:
Rum:
5/6
Pris:
0
pdf: